Ontwerp ‘Hart van Vathorst’ Amersfoort
Projectinformatie
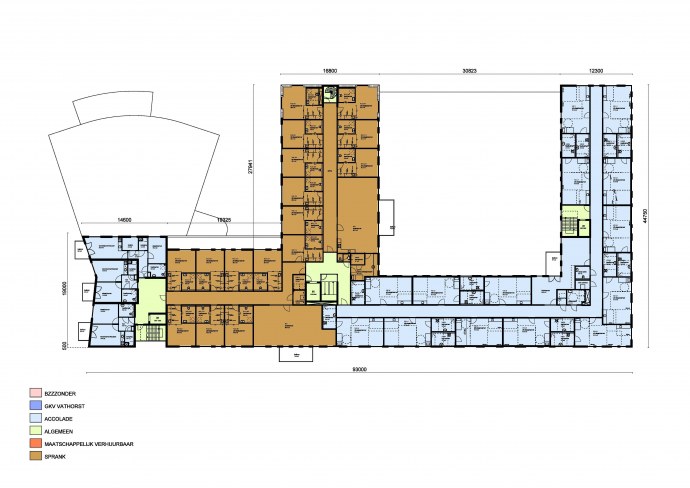
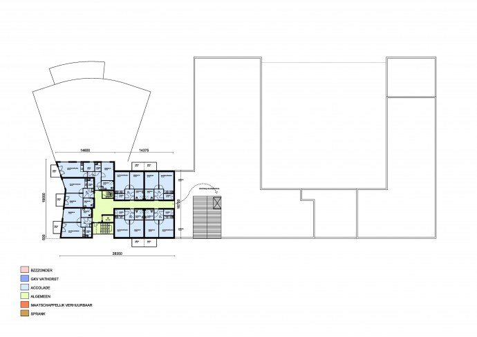
Twee zorginstellingen (Accolade Zorggroep & Stichting Sprank), een kerk (GKV) en een kindercentrum (Bzzzonder) onder één dak, dat is Hart van Vathorst. In plaats van diverse losse ontwikkelingen één gezamenlijke ontwikkeling. Gevolg hiervan is een sociaal, ruimtelijk en financieel voordeel doordat er gebruik gemaakt wordt van elkaars personele capaciteiten en elkaars facilitaire capaciteiten. Daarnaast spelen samenwerking, leren van elkaar en versterking een belangrijke rol.
De ontwerpopdracht is door Borgerink Architecten in opdracht van Jorissen Simonetti architecten uitgevoerd voor Zenzo Maatschappelijk Vastgoed / Lithos Bouw. De gehele ontwikkeling, is onder aansturing van Lithos Bouw, een samenwerkingsproces geweest tussen alle verschillende adviseurs. De adviseurs hebben hun adviezen op hun vakgebied samengesmeed tot één ontwerp, waarbij met verschillende terugkoppelingen naar de vier participerende partijen, definitieve ontwerp beslissingen werden genomen. En deze hebben geleid tot een mooi gezamenlijk ontwerp.
In een later stadium heeft voor de belegger, de Alliantie, nog een ontwerpsessie plaats gevonden. De vraag was; hoe flexibel en toekomst bestendig is het gebouw. Hiervoor hebben wij als architect een ontwerppuzzel uitgevoerd. Deze ontwerppuzzel heeft inzichtelijk gemaakt hoe flexibel het gebouw is, en hoe de appartementen in de toekomst gerealiseerd kunnen worden.
Gebouw grootte: ca. 11.600 m2 bvo
Opdrachtgever: Zenzo Maatschappelijk Vastgoed / Lithos Bouw
Gebruikers: GKV-Vathorst, Bzzzonder Kinderdagopvang, Accolade Zorggroep en Stichting Sprank
Belegger: De Alliantie Amersfoort
Opgeleverd: Maart 2016














