Ontwerp woning aan de Leemhorst 21 in Enter
Projectinformatie
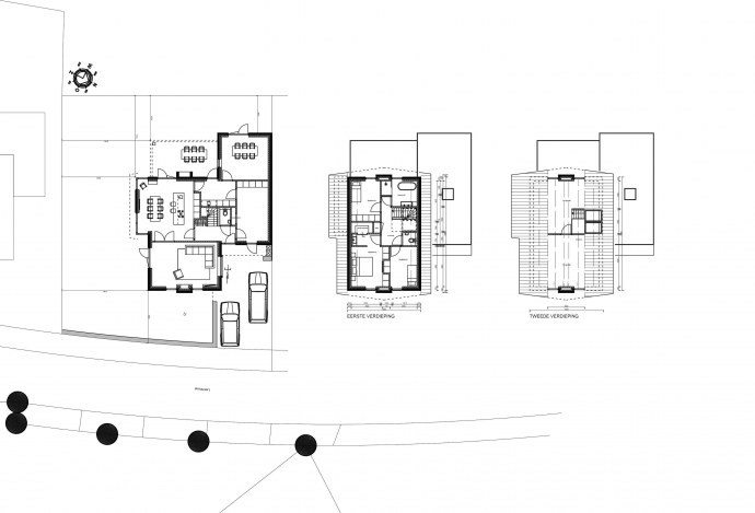
Ontwerp woning aan de Leemhorst 21 in Enter.
In de nieuwbouwwijk ‘De Berghorst’ in Enter hebben we samen met de opdrachtgevers/toekomstige bewoners een eigentijdse woning ontworpen.
De woning heeft als hoofdvorm een rechthoekige vorm met daaroverheen een groot zadeldak dat aan alle zijden van de woning oversteekt. Zowel aan de voor- als aan de achterzijde is er een verticale belijning opgepakt, belangrijke elementen hierin zijn de schoorstenen en de verticale ramen van maaiveld tot aan de daklijn aan weerszijden hiervan, waarbij de daklijn aan de voor- en achterzijde voor een extra fraai verticaal effect naar voren helt. De woning wordt voorzien van een donkere vlakke pan waarin de zonnepanelen indaks worden weggewerkt, de donkere steen Cedarwood – antraciet/paars/grijs gemêleerd van Daas Baksteen en aluminium kozijnen.
Opdrachtgever: particulier




