24 appartementen voor Welbions Hengelo
Projectinformatie
24 huurappartementen voor Welbions Hengelo.
De locatie aan de Sloetsweg ligt precies op de grens tussen de schaalgrootte van het Bellinckhof enerzijds en de kleinschaligere bebouwing en het groene park anderzijds.
Het ontwerp van het gebouw sluit aan op het Bellinckborg, door in de blokvormige massa een horizontale knip te maken en een deel van de bebouwing naar achteren te schuiven en op één lijn te zetten. Hierdoor ontstaat er op een natuurlijke wijze aansluiting tussen de beide gebouwen. Daarnaast komen kleinere elementen terug in het ontwerp. Zo zijn de vlakken met het bijzondere metselwerkverband een knipoog naar de vlakken in het metselwerk van het Bellinckborg en zijn de kaders rondom de kozijnen een verwijzing naar de kaders rondom de balkons.
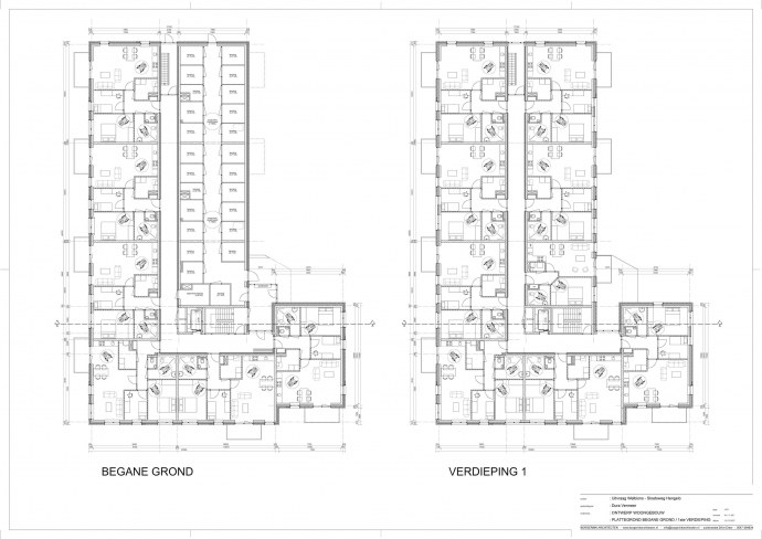
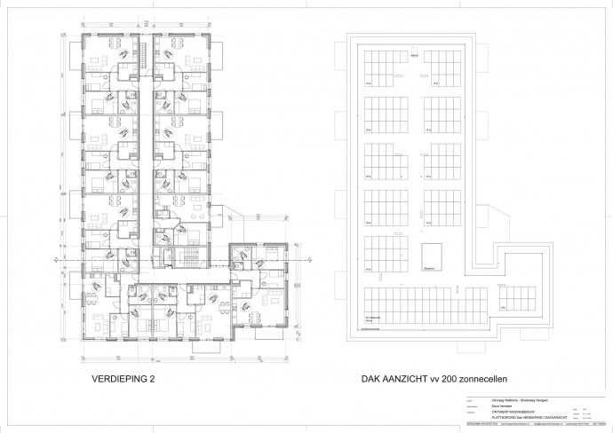
PLATTEGRONDEN
Het appartementengebouw is compact van opzet en zit functioneel erg efficiënt in elkaar. Door de corridorontsluiting is het mogelijk alle leefruimtes aan de buitengevels te positioneren, waardoor er volop licht kan toetreden. Ook kunnen we hierdoor 3 extra appartementen toevoegen (een grote en twee kleine). Een groot deel van de appartementen heeft een woonkamer die meerzijdig georiënteerd is, een plus voor het uitzicht.
De entree van het gebouw ligt aan de zijde van de parkeerplaatsen (na gunning is er een entree aan de voorzijde toegevoegd). Zo is de loopafstand tussen de geparkeerde auto’s en de entree zo kort mogelijk. Fietsers kunnen vanuit buiten direct het bergingencomplex in, om hun fiets te stallen. Eenmaal binnen blijf je binnen: je loopt vanuit de bergingen rechtstreeks naar de centraal gelegen lift en het trappenhuis.
Opdrachtgever: Dura Vermeer Hengelo i.o.v. Welbions








