Inrichtingsontwerp Rijndam Revalidatie Dordrecht
Projectinformatie
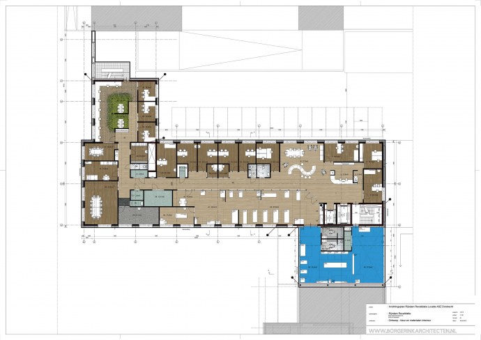
Borgerink architecten heeft in samenwerking met de opdrachtgever, Rijndam Revalidatie locatie Dordrecht, een indelings- en inrichtingsontwerp gemaakt, een kleur- materiaaladvies en een balieontwerp voor de nieuwe vleugel van Rijndam Revalidatie in het nieuwe Coral gebouw bij het Albert Schweitzer Ziekenhuis in Dordrecht.
Opdrachtgever: Rijndam Revalidatie
Skills: Zorg, Interieur







